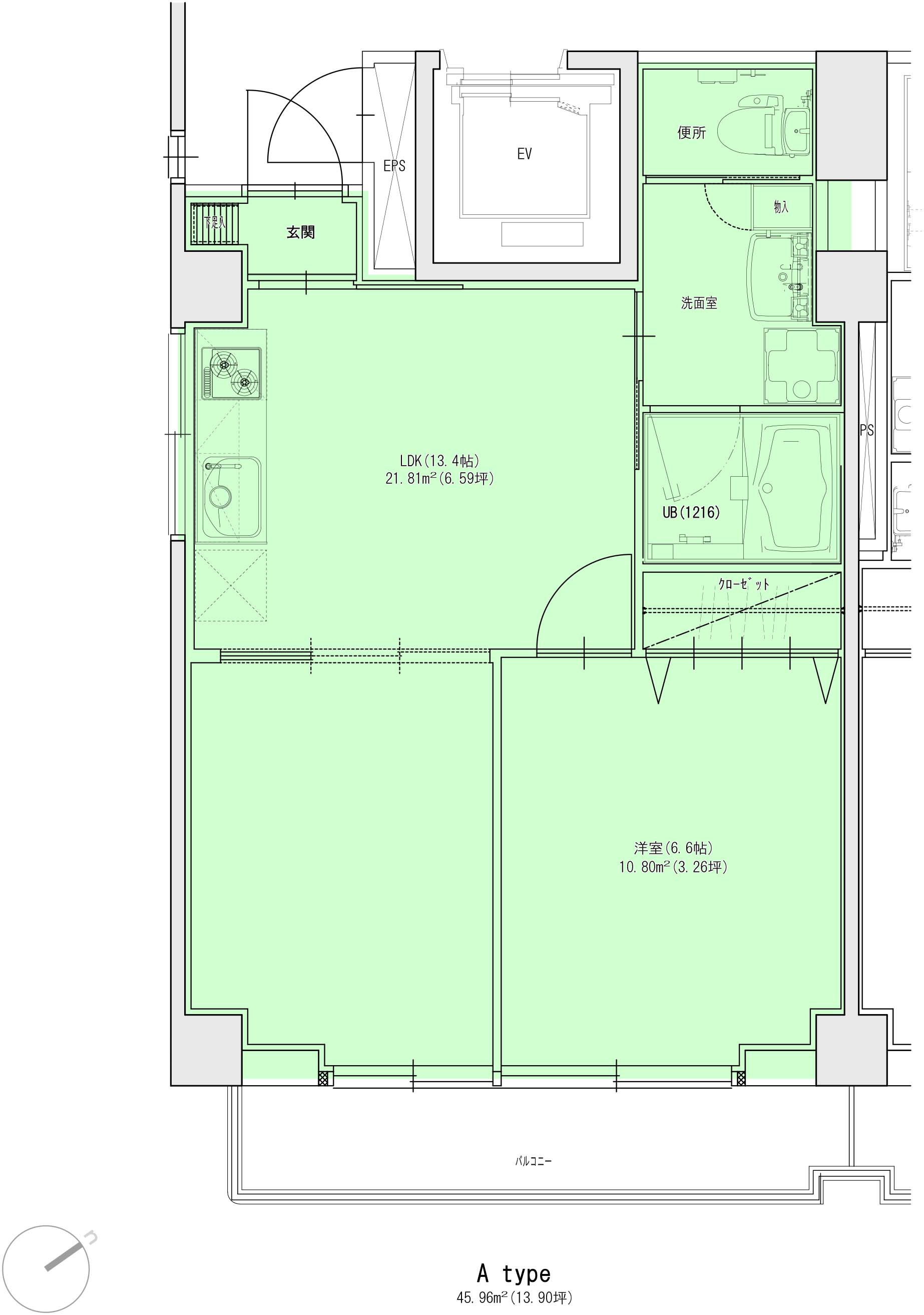
A-Type

A type

A-type  45.96㎡
(13.9坪)

各階角部屋

キッチンに窓があり、明るく開放的です。

1LDK 2DKとしての利用も可

住みやすい間取り

 

 

【室内設備】

LIXIL システムキッチン

パナソニック ユニットバス

TOTO ウォシュレット付トイレ

LIXIL 洗面ドレッサー

YKK ペアガラスサッシ 防音断熱

EIDAI フローリング

調光・調色可能なLED照明

顔の見えるインターフォン

フレッツ光・JCOM