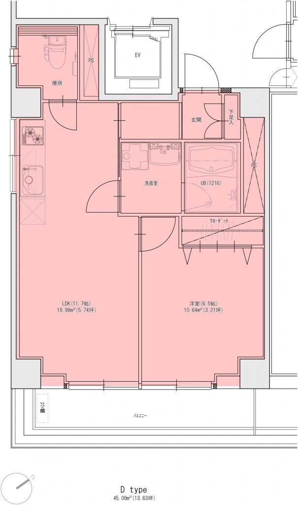
D-Type
D-type 45.08㎡(13.63坪)
この部屋のみ天井高が高く、低階層でも開放的
サッシも開口が広く取れており、
3階とは思えない明るいお部屋です
玄関から室内が見えず、女性の方でも安心
バルコニーの奥行きが広い!
とても使いやすい1LDKの間取り
【室内設備】
LIXIL システムキッチン
パナソニック ユニットバス
TOTO ウォシュレット付トイレ
LIXIL 洗面ドレッサー
YKK ペアガラスサッシ 防音断熱
EIDAI フローリング
調光・調色可能なLED照明
顔の見えるインターフォン
フレッツ光・JCOM

